File Ref: 9470
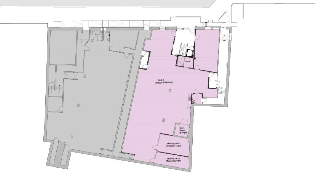
Business unit suitable for range of uses 4,120 sq. ft.
Possible to split to suit demand.
Current rating: C65
The subject is located on High Street within the town centre and occupies a prominent position opposite Castle Mall Shopping Centre.
The subject comprises a lower ground floor unit suitable for a wide variety of uses including office, retail and gym subject to landlord and any necessary planning consents. The unit benefits from access onto the impressively finished Riverwalk Boardwalk.
The unit can be split or let as whole.
| Unit 5: | c. 3383 sq m (4,120 sq ft) |
| RENT: | Price on Application |
| TERM: | Negotiable |
| REPAIRS: | Tenant responsible for all internal repairs plus a contribution to the maintenance and upkeep of the building and common areas by way of service charge. |
All prices, outgoings etc are exclusive of, but may be subject to VAT
| Unit 5: | c. 3383 sq m (4,120 sq ft) |
| RENT: | Price on Application |
| TERM: | Negotiable |
| REPAIRS: | Tenant responsible for all internal repairs plus a contribution to the maintenance and upkeep of the building and common areas by way of service charge. |
All prices, outgoings etc are exclusive of, but may be subject to VAT

